Summary of the Board Of Supervisors Meeting in October

  October 8, 2024 2:00 PM

 Present: Supervisors David Parr, Ernie Reed, and Dr. Jessica Ligon. Absent:  Supervisors Jesse Rutherford and Thomas Harvey.

 I.  The Meeting was called to order followed by a moment of silence and the pledge of allegiance.

 II. PUBLIC COMMENTS

1.     Stephen Bayne, Nellsyford: Mr. Bayne asked a series of questions about a formal complaint submitted about the site plan and the formal review process of Renaissance Ridge and requested that the Board prepare and provide precise answers to a series of questions: 1) what is the regulatory legal status of the application site plans; 2) what are the regulatory prerequisites and deadlines for the application if revised: provide the status of communications regarding the______(author could not make out the word) in as much detail as possible. We know FEMA will require an advertising process if there is a modification of the flood hazard map and requested timeline regarding same. (The author is unfamiliar with what is being requested and unsure of the accuracy of this summary. It begins at the 1 minute 26 second mark on the Board of Supervisor YouTube video for the first recording of the afternoon session and the reader is invited to review his comments in whole.)

2.     Robert Gubisch, Faber: said that he recently spoke with Congressman Robert Goode who called the Biden administration “evil. “ He again told the Board that we could not count on the federal government and we are effectively on our own in the county.

3.     Eleanor Amidon, Afton: This is the verbatim comments,  a copy of which was delivered by the speaker to Candice McGarry:

“Why do Jesse Rutherford and Jessica Ligon want to replace the Planning Commission’s representative from the Board of Supervisors?  They gave no logical or plausible explanation during the September 10 Board of Supervisors meeting, only a request that Ernie Reed switch out that of his appointed role and vague innuendos about what might happen if he didn’t. 

It seems that the Board of Supervisors has orderly procedures for making appointments for specified periods of time. My understanding from a file (Nelson County VII-B-1-Appointments-Master File.pdf) that I accessed through the Nelson Cunty website, is that appointments to the Planning Commission are made for four years with no term limits.

Updating the Nelson County comprehensive  plan, and possible changes to zoning ordinances, are complicated, interrelated issues. When you have a thoughtful and competent person serving on the Planning Commission, you don’t want to arbitrarily switch him out for a less experienced person.

I question Jesse Rutherford’s judgement in making an unsubstantiated motion, based solely on his and Jessica  Ligon’s misleading and ambiguous rationalization, on a subject not on the meeting’s agenda to a board with a bare minimum quorum present. Members of the Board of Supervisors should have more important things to do than to waste time playing games like this. I urge  Jesse’s constituents in the East District to question his judgement as well before reelecting him in 2025 as their representative.”

 4.     Chuck Amante, Shipman: addressed one of the Supervisors who was unnamed and said as a Christian he, Mr. Amante  needed to apologize for saying things publicly that he still  believes were true. Mr. Amante said that he should have spoken privately with the board member about his concerns and that things might have turned out differently had that private conversation occurred. Mr. Amante felt that he may have caused the Board member untoward distress and embarrassed him publicly. He hoped the Board member would forgive him. (note from the author: Mr. Amante was the East District representative on the Planning Commission identified by Supervisor Rutherford as the one of the members who would resign immediately if Supervisor Reed remained on the Planning Commission.)

III. CONSENT AGENDA

A. Resolution – R2024-66 Minutes for Approval: The following was unanimously approved.

RESOLVED, by the Nelson County Board of Supervisors that the minutes of said Board meetings conducted on April 11, 2024 be and hereby are approved and authorized for entry into the official record of the Board of Supervisors meetings.

B. Resolution – R2024-67 Budget Amendment : The following was unanimously passed:

 I. Appropriation of Funds (General Fund)

Amount Revenue Account (-) Expenditure Account (+)

$ 5 98.00 3-100-002404-0034 4-100-031020-1014

$ 6 ,094.30 3-100-001899-0008 4-100-091030-5202

$ 1 ,625.00 3-100-001901-0032 4-100-031020-3038

$ 2 ,121.73 3-100-003303-0008 4-100-999000-9905

$ 2 ,705.11 3-100-003303-0008 4-100-999000-9905

____________

$ 1 3,144.14

 

EXPLANATION OF BUDGET AMENDMENT

I. Appropriations are the addition of unbudgeted funds received or held by the County for use within the current fiscal year budget. These funds increase the budget bottom line. The General Fund Appropriations of $13,144.14 include requests of (1) $598.00 appropriation requested for FY25 Sheriff's DCJS Temporary Detention Order and Emergency Custody Order (TDO & ECO) funding received for July 2024 transports; (2) $6,094.30 appropriation requested for FY25 OPIOID Abatement Funding received in September 2024; (3) $1,625.00 appropriation request for Sheriff's FY25 UVA MOU Special Events Overtime funding for August 2024; (4) $2,121.73 appropriation request for FY24 Sheriff's DMV

Selective Enforcement Traffic Federal Grant funds received in FY25; (5) $2,705.11 appropriation request for FY24 Sheriff's DMV Selective Enforcement Alcohol Federal Grant funds received in FY25. The total appropriation request for this period is below the 1% of expenditure budget limit of $745,070.96 for October. Of the total appropriations this month, $4,826.84 represents FY24 accrual revenue received to date in FY25 and returned to Non-Recurring Contingency. Following approval of these expenditures, the balance of Non-Recurring Contingency would be $487,044.17.

 IV. PROCLAMATION– OCTOBER IS DOMESTIC VIOLENCE AWARENESS MONTH

(P2024-05): the following was unanimously adopted:

WHEREAS, the problems of domestic violence are not confined to any group or groups of people but cross all economic, racial and societal barriers, and are supported by societal indifference; and

WHEREAS, the crime of domestic violence violates an individual’s privacy, dignity, security, and humanity, due to systematic use of physical, emotional, sexual, psychological and economic control and/or abuse, with the impact of this crime being wide-ranging; and

WHEREAS, no one person, organization, agency or community can eliminate domestic violence on their own—we must work together to educate our entire population about what can be done to prevent  such violence, support victims/survivors and their families, and increase support for agencies providing services to those community members; and

WHEREAS, the Shelter for Help in Emergency and the Nelson County Victim/Witness Program have led the way in the County of Nelson in addressing domestic violence by providing 24-hour hot line services to victims/survivors and their families, offering support and information, and empowering survivors to chart their own course for healing; and

WHEREAS, the Shelter for Help in Emergency commemorates its 45th year of providing unparalleled services to women, children and men who have been victimized by domestic violence; and

WHEREAS, the Nelson County Victim/Witness Program currently provides victim advocates and a support group for those seeking relief from domestic violence in Nelson County;

NOW THEREFORE, BE IT RESOLVED, in recognition of the important work being done by the Shelter for Help in Emergency and the Nelson County Victim/Witness Program, the Nelson County Board of Supervisors do hereby proclaim the month of October 2024 as DOMESTIC VIOLENCE AWARENESS MONTH, and urge all citizens to actively participate in the elimination of personal and institutional violence against women, children and men.

 V. PRESENTATIONS

A. VDOT Report: Jeff Sayers spoke for VDOT. He reported that Faber and Schuyler were the areas that were hardest hit in the Hurricane Helene, and that the roads generally are open  and that VDOT worked a lot of overtime. Fifteen hundred  tons of gravel is coming for North Fork. The Board thanked VDOT for its hard work. Supervisor Parr pointed out the unfortunate similarities between the damage that Nelson suffered from Hurricane Camille and what occurred in southern Virginia, North Carolina and Georgia.

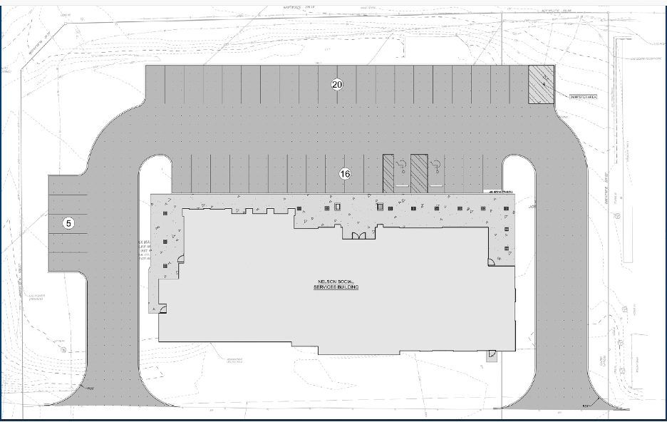
 B. Social Services Office Building, Schematic Design Update – PMA Architecture

(R2024-68): PMA Architecture presented its schematic of the proposed DSS building and the timeline. The design was intended to be compatible with other public building like the library, to be comfortable and attractive, to meet the needs of DSS over the next 10 years and to be placed so that it would show from Route 29 in a welcoming way at the entrance to Lovingston. Room No. 6 (conference room) has an outside entrance and can be shut off along with two bathrooms from the rest of the building so that the conference room can be used by other groups and agencies during the business day or after hours.

A summary of the schematic design presented by PMA Architecture approved by the Board is below: 


 The following resolution was unanimously adopted by the Board:

BE IT RESOLVED, by the Nelson County Board of Supervisors that the schematic design for the Nelson County Social Services office building, presented at the October 8, 2024 regular Board of Supervisors meeting, is hereby approved and PMA Architecture is authorized to proceed with next steps in design development.

 VI. NEW & UNFINISHED BUSINESS

A. TJPDC Regional Housing Study & Local Funding Request (R2024-69): The Board unanimously adopted the following resolution:

“WHEREAS, the availability of diverse housing options is vital to the economic growth and well-being of Nelson County's residents; and

WHEREAS, the Thomas Jefferson Planning District Commission (TJPDC) is conducting a Regional Housing Needs Assessment and Strategy Study to address current and future housing needs within the district, including Nelson County, and develop actionable strategies; and

WHEREAS, the total budget for this study is over $230,000, requiring financial support and participation from localities within the TJPDC to ensure comprehensive data collection and strategy development that reflects the unique housing challenges of each locality; and

WHEREAS, Nelson County recognizes the importance of participating in this regional effort to address housing availability to foster sustainable community growth as well as the crucial resource this Study will provide for Nelson County to identify its specific housing needs and tailored strategies to support economic development within the County; and

WHEREAS, Nelson County is committed to contributing $10,000 to the TJPDC's Regional Housing Needs Assessment and Strategy Study to support this effort and ensure that specific housing strategies are developed to meet the unique needs of Nelson County;

NOW, THEREFORE, BE IT RESOLVED, by the Board of Supervisors of Nelson County, Virginia, that:

Nelson County will contribute $10,000 toward the total $230,000 budget for the TJPDC's Regional Housing Needs Assessment and Strategy Study. Nelson County commits to active participation in the study, including the development of specific strategies tailored to the housing needs of Nelson County. Nelson County recognizes that participation in this study will provide valuable insights and recommendations that can help shape future housing policies, programs, and development in the County. 

The County Administrator is hereby authorized to execute any necessary agreements or documents required to formalize Nelson County's participation in the TJPDC Regional Housing Needs Assessment and Strategy Study.

This resolution shall take effect immediately upon its adoption.”

 B. Registrar’s Office Proposed Lease Agreement Revision (R2024-70): The Board unanimously adopted the following after hearing from the County Registrar how cramped the existing space is and the need for additional storage (much of it secure) and additional office space. Candace McGarry and the Registrar stated that they had looked at several other properties that were not as suitable and nor so reasonably priced.

“WHEREAS, Nelson County currently leases the first floor office space of approximately 1,925 s.f. at 571 Front Street in Lovingston; for use by the Registrar and Local Electoral Board at a cost of $1,966/month and payment of 50% of the building’s actual monthly water, sewer, and electric utility costs of approximately $142.20 totaling approximately $2,108.20/month; and

WHEREAS, the Registrar has requested the ability to utilize the basement area of the building, which will provide the Registrar and Local Electoral Board an additional 1,200 s.f. needed for equipment and supplies storage, training, and workspace; and

WHEREAS, a new lease agreement is necessary to include this additional 550 s.f. of space which provides for rental of the entire premises of 3,125 s.f., at a cost of $2,516/month, and payment of 100% of the building’s actual monthly water, sewer, and electric utility costs of approximately $284.40; totaling approximately $2,800.40/ month, as well as to memorialize the change in ownership of the building,

NOW THEREFORE BE IT RESOLVED, that the Nelson County Board of Supervisors does hereby authorize the County Administrator to execute a new lease agreement, as immediately as possible, with Rutherford Enterprises, LLC to include the rental of the entire premises of the building located at 571 Front Street in Lovingston (3,125 s.f.) for $2,516/month and payment of 100% of actual monthly water, sewer, and electric utility costs on behalf of the Registrar and Local Electoral Board.”

 C. Sheriff’s Department

1. Replacement of Body Worn Cameras (R2024-71): Sheriff Embrey spoke to the board about the age of the existing body cameras. That Motorola, the manufacturer was no longer making that model and as of January would no longer be supporting the software. The Sheriff’s office had investigated two different manufacturers to provide replacements and had concluded that the pricing overall and the features were generally identical and that both systems were designed to last five years. The Board unanimously approved the following:

“BE IT RESOLVED, that the Nelson County Board of Supervisors hereby authorizes the Nelson County Sheriff’s Office to enter into a contract with either Axon Enterprises, Inc. or Motorola Solutions for the provision of 25 Body Worn Cameras, associated equipment, and video cloud storage on January 1, 2025; securing overall pricing of NTE $99,640 consisting of annual subscription fees spread over a five (5) year contract term of July 1, 2025 through July 1, 2029.

BE IT FURTHER RESOLVED, that the funding for this contract is subject to annual appropriation by the Board.”

2. Local Speed Enforcement Position Request: The Board unanimously approved the request of Sheriff Mark Embrey to hire an additional deputy sheriff for traffic control along the Route 29 and Route 151 corridors. The information presented supporting the new hire is set forth below and Sheriff  Enbrey assured the Board that the position will pay for itself from ticket revenues and that that no additional vehicles will be needed by the department as a result of this hire for a least one fiscal year.

Linda Staton provided the board with the following information regarding the expected cost of an additional deputy as well as the included  information about monies available as result of speeding fines:

 

The need for the position was evidenced by the following data from the Nelson County School Board:

D. Proposed Davenport Financial Advisory Agreement Addendum (R2024-72): the Board considered and unanimously adopted the resolution set forth below after addressing with Ms. McGarry whether her office could do what the consultants were doing. She indicated that it exceeded their manpower capabilities. The scope of the work is as follows:

Scope of Work

In conjunction with the ongoing Debt Capacity and Affordability Analyses, County staff has requested that Davenport assist in the development, review, and presentation of Financial Policy Guidelines including policy objectives, fund balance, and other areas of County management as requested by County staff. Davenport will perform the following services, among others as desired by the County, in connection with development and implementation of Financial Policy Guidelines:

▪ Review existing Financial Policies, if any (i.e., both Formal and Informal).

▪ Provide a comparison to other local governments as benchmarks for the County to evaluate and consider the appropriate policy levels for key financial ratios.

▪ Review financial information from the County’s FY 2023 Audited Financial Statements and the County’s FY 2024 and FY 2025 Adopted Budgets in relation to developing the recommended Financial Policy

Guidelines.

▪ Prepare draft written Financial Policy Guidelines.

▪ Attend meeting(s) with County staff and County Board to review, present, amend, and finalize the draft Financial Policy Guidelines for the County Board’s consideration and adoption.

 The language of the resolution is as follows:

 “WHEREAS, Nelson County entered into a Financial Advisory Agreement with Davenport & Company, LLC (Davenport) dated March 9, 2021 for the purpose of ongoing debt capacity and affordability

analyses; and

WHEREAS, the Board of Supervisors and County staff wish to engage Davenport in assisting in the development, review and presentation of Financial Policy Guidelines including policy objectives, fund balance, and other areas of County management as requested;

NOW THEREFORE BE IT RESOLVED, that the Nelson County Board of Supervisors hereby authorizes the County Administrator to execute the Addendum to the Financial Policy Agreement included herewith, for the provision of financial advisory services incorporating the development of a series of financial policy guidelines; and

BE IT FURTHER RESOLVED, that these services will be performed for a not-to-exceed amount of $31,200 including administrative expenses.”

 

VII. REPORTS, APPOINTMENTS, DIRECTIVES, AND CORRESPONDENCE

A. Reports

1. County Administrator’s Report:

A.    VDOT Meetings:

1.     Route 151 Speed Study Results Meeting: Staff and Supervisor Reed met with VDOT staff on September 16, 2024. The speed study data was reviewed and it was noted that the drivers behind the recommendation of not reducing the speed limit to 45 mph from Route 664, Beech Grove Road north to the County line were the 85th percentile speeds of around 60 mph and the 10 mph range of pace speeds that were 47mph – 58mph at the count locations. They noted that creating such a speed differential causes problems and when speed limits are undershot, enforcement and driver training issues were created; especially when a low percentage was already going slower than the pace speed. It was discussed that the future roundabouts planned for along the corridor would change the geometry of the roads, which would in turn create a naturally slower pace; which would warrant speed reductions at that time. Traffic engineering indicated they would possibly consider going to 50 mph from Bland Wade Lane going south.

  2.     Route 29 Corridor: County staff and Sheriff’s Department met with VDOT staff and VSP to discuss recent fatal crashes on the Route 29 corridor and six “hot spots” were identified: Woods Mill intersection of 29 and Route 6, Route 56 West and Route 29, Irish Road and Route 29, Eades Lane and Route 29, Buck Creek Lane and Rockfish River Rd., Arrington Rd. and Route 29. It was determined VDOT would conduct a study that would take 60-90 days and in the meantime, they would look at short term solutions such as improvements to signage, pavement markings, and intersection controlled warning systems. Long term solutions that may arise from the study would be potential future Smart Scale or Highway Safety Improvement Program funding projects. The conduct of a public listening forum by the Sheriff’s Department was agreed upon with VDOT, VSP, and Board of Supervisors invited to attend and hear citizen concerns. This forum will be held on November 7th from 6-8 pm at NCHS with advertisements posted soon.

 B.    DSS Building: The due diligence evaluation under the purchase agreement for the building site at 37 Tanbark Plaza is in process; with settlement/closing to follow upon its favorable conclusion.

 C.    Region 2000 Solid Waste Authority: With 2029 being the expected year for the Regional landfill to reach capacity, the Solid Waste Authority is preparing to submit a 60-acre expansion proposal to Campbell County for consideration, that would provide for solid waste disposal through 2053. In conjunction with this proposal, Campbell County and Lynchburg City have adopted resolutions directing their staff to prepare and execute agreements to resolve the Region 2000 litigation; with Nelson and Appomattox staff and attorneys evaluating proposal of a similar resolution for our Boards’ consideration in the very near future.

 D.    ACRJ Opioid Use Disorder Program (OUD): Member jurisdiction executives met with ACRJ staff to discuss a pilot initiative to move from providing multi-dose oral medication to inmates with OUD to providing them with a monthly injectable medication, starting January 1, 2025. This method is more beneficial for both ACRJ staff and the inmate; but is substantially more costly per year. ACRJ is looking to fund this pilot program with either a combination of pro-rata shares of opioid abatement authority funds from each locality or preferably a Department of Criminal Justice Services (DCJS) grant opportunity. Nelson’s pro-rata share would be $21,045. ACRJ staff are investigating the possibility of them applying for this DCJS grant; and once the funding options are known, staff will follow up with more details of the proposal.

 E.    County Facility Maintenance:

  1.     Scheduled/Budgeted Projects:

a. Animal Shelter Roof: Roof replacement began on Monday, October 7, 2024, is in process and is expected to be completed by the end of the week.

b. Transfer Station Tipping Floor: AE investigation, development of bid specifications and bid package is in process for replacement of the 2006 tipping floor, the addition of a concrete approach apron at the entrance, and repair of existing damage to the metal building wall paneling. Bidding is planned for January 2025 with award of a contract in February, and construction starting in early March to allow for optimal concrete curing.

c. Carpet Cleaning: Quotes for routine carpet cleaning in the ECC, Courthouse, and DSS are being obtained.

d. Signage Maintenance: Signage at the Courthouse Complex, Registrar’s Office, and McGinnis building will be refreshed in the coming month.

2.     Unbudgeted Facility Needs:

a. Commonwealth Attorney Office Door: To address immediate ADA accessibility and security concerns, quotes are being sought to establish a new ADA accessible entry door to the Commonwealth Attorney’s office that also provides for visibility of those entering. The new main doorway would be within the brick archway and would be metal and glass and the current solid entry door would be removed. The preference is to tie-in this doorway with the current badged and monitored door security system.

 b.Animal Shelter Ceiling Repair: Ceiling panels at the animal shelter are in need of replacement due to exposure to moisture from the leaky roof. Staff will look at getting quotes for this repair in the near future.

c. Animal Shelter Drain and Kennel repair: The drain that carries away animal waste from the kennels in the shelter is clogged/collapsed and in need of repair; in order to access the drain and do the work, the kennels need to be removed. My understanding is that these kennels are original to the shelter which is at least 24 years old and they are recommended to be replaced. This provides the opportunity to reconfigure the kennel arrangement to better suit the needs of the department; which Kevin is working on. The kennel floor will need to be re-epoxied as part of this process. Kevin and Jeff are working on this and are in the process of obtaining quotes for this work.

A.    Larkin Water Capacity Follow Up Proposal (CHA): Staff has recently inquired with Stevie Steele of CHA regarding the Board’s consensus to get a follow up proposal and pricing for some next steps in evaluating water supply at the former Larkin property. Mr. Steele is working on that proposal for the Board’s consideration which includes flow calculations from Dillard Creek, and a resistivity analysis plan inclusive of drawdown testing for potential wells; and water quality testing.

B.    Regional Planning Grant for Digital Inclusion: The VA Department of Housing and Community Development (DHCD) has approved the regional application for Virginia Affordability and Adoption Planning Grant funds in the amount of $150,000; to develop a regional Broadband Adoption and Affordability plan for Nelson, Albemarle, Fluvanna, Greene, Louisa, and Charlottesville City. No local match was required. The next step is a Facilitated Planning Session with DHCD staff.

C.    Meals and Lodging Tax Collection Tracking: See Attached – *NEW* Lodging Establishments/Revenue by Calendar Year Chart

D.    Hurricane Helene Damage Reporting: Staff is gathering/sending storm damage of County property to VA Dept. of Emergency Management (VDEM) in the event reimbursement will be provided. Primary damage is at the Blue Ridge Tunnel trail. 

Meals and Lodging Tax collection graphs requested by the Board:

2. Board Reports: 

Supervisor Reed reported that the proposed Adult Living site plan off Route 151 was approved by the planning commission. He further reported that all four county schools had received accreditation with no conditions and that chronic absenteeism in all four county schools is greatly reduced. The elementary schools are at level one on absenteeism. The Middle School has improved its performance in the areas of English. Tye River Elementary’s overall student achievement has significantly improved. Due to unfilled/unfunded positions money was found to provide for some modest pay increases and corrections to some pay inequities. TJPDC has an initiative called Path (includes but is not limited to Jaunt and may include vouchers)  where it is working region wide to develop transportation for people trying to reach doctors and medical appointments.  Supervisor Reed approached TJPDC about working with Amherst County to provide public transportation to the south for people working in Amherst and living in Nelson. Supervisor Reed attended the dedication of the Piedmont Habitat for Humanity second house off of Tye River Road. The high school trade program was instrumental in accomplishing the construction.

 Supervisor Parr: No reports.

 Supervisor Ligon: No reports

 B. Appointments: continued to the evening meeting

C. Correspondence

D. Directives:

Supervisor Ligon: the town of Gladstone wants to drop its speed limit to 15 miles per hour. She inquired what would be necessary to make that happen and was told by Ms. McGarry that an ordinance would have to be prepared by Staff  and advertised and be advertised for a public hearing. There would be multiple steps with VDOT.  Dr. Ligon referenced that area is not an area where the police often patrol to enforce the speed limit. She raised the possibility of speed bumps might be a better alternative. Staff will look into how we approach VDOT for speed bumps.

 Supervisor Reed:  He pointed out that the area just north of the speed drop on 151 to 45 north of Rockfish River Elementary would benefit to a reduction in the speed to 50 miles per hour.

 VIII. THE MEETING WAS ADJOURNED  AND CONTINUED TO THE EVENING SESSION AT 7PM

EVENING MEETING:

 

Present: Supervisors Jesse Rutherford, David Parr, Ernie Reed and Dr. Jessica Ligon.

Absent: Supervisor Thomas Harvey.

 I. The meeting was called to order and the unaddressed issue of the appointments continued  from the afternoon meeting was addressed.

 Appointments: There were two positions open, one on the planning commission representing East district due to the resignation of the incumbent and one the Board of Zoning Appeals. The positions are described below.

PLANNING COMMISSION

Authority: Established by the Code of Virginia §15.2-2200 et seq. and County Code Article II, Sec.9-26

Membership: 6 members: 5 Appointments by Election District, with 1 appointed Board of Supervisors member.

Term: 4 Years, July 1 – June 30, No Term Limits

Summary of Duties: As Established by the Code of Virginia §15.1-427.1 et seq., the Board members serve in order to promote the orderly development of the County and to plan community centers with adequate highway, utility, health, educational and recreational facilities, and to provide for the needs of agriculture, industry and business in future growth. This includes interpretation and development of the County Zoning and Subdivision Ordinance with review of citizen applications for re-zoning requests, conditional use permits, and subdivision requests with subsequent recommendations to the Board of Supervisors for action on such applications.

Meetings: Regular meetings are held the fourth Wednesday of each month with the exception of November. Members are compensated $75 per meeting plus mileage paid at the existing State mileage rate.

 BOARD OF ZONING APPEALS

Board Recommends Appointment to the Circuit Court.

Established: by Article 14 of the Nelson County Code, Composition: 5 members and an alternate recommended by the BOS and appointed by the Nelson Circuit Court, 1 of which is an active Planning Commission member.

Term of Office: 5 years; No Term Limits

Summary of Duties:

To hear and decide applications for Special Use Permits where authorized by Ordinance including deciding interpretation of the district map where there is uncertainty as to location or boundary. To authorize upon appeal in specific cases such variance from the terms of the ordinance as will not be contrary to public interest.

Meetings: Meetings are held at the call of the Chairman or at such times as a quorum of the board may determine. Members serve on a volunteer basis without pay other than for travel expenses.

The names of the incumbents and the candidates are set out below:

The Board unanimously voted to appoint William Smith to finish the term to represent East District on the Planning Commission and Philippa Proulx was appointed to the Board of Zoning Appeals.

 II. PUBLIC COMMENTS

 None.

III. PUBLIC HEARINGS

A. Special Use Permit #24-0213 – Public Garage

Consideration of a Special Use Permit application requesting County approval to allow a public garage on a property zoned A-1 Agricultural. The subject property is located at Tax Map Parcel #92-2-6, addressed 4365 Tye River Rd in Amherst. The subject property is 5.365 acres and is owned by Donna and Jay Hogston.

 Comments: The owners are proposing to construct a 1,200 sf garage to utilize for automotive repair of 2-3 vehicles a year. The owners reside on the subject property and all vehicles will be screened from adjacent properties and roadways. A public garage is defined as “a building or portion thereof, other than a private garage, designed or used for servicing, repairing, equipping, renting, selling, or storing motor-driven vehicles.” Private garages are accessory to dwellings and utilized for storage only.

 Land Use / Floodplain: This area is primarily agricultural and low density residential in nature. Zoning in the vicinity is A-1 Agriculture, and the adjacent lots are currently undeveloped. There are no floodplains or streams located on this property.

Access / Traffic / Parking: The property is accessed by an existing entrance from Tye River Road and requires no improvements.

Utilities: There are no utilities proposed or required for the requested use. Comprehensive Plan: This property is located in a Rural Area as designated by the Nelson 2042 Future Land Use Map. The core concept is the ensure the protection of the County’s rural landscape and economy by maintaining open space, scenic views, and agricultural uses with compatible low density residential uses.

Nelson County Planning & Zoning Recommendation: At their meeting on September 25, 2024 the Planning Commission recommended approval (6-0) of SUP #240213 for a public garage with the following conditions:

1. There shall be no more than 5 project vehicles located on the property at one time.

2. All vehicles and equipment shall be screened from view by adjacent properties and roadways.

 No one asked to speak at the Public Hearing.

 The Board voted unanimously to approve the requested Special Use Permit per the recommendation of the Planning Commission.

 IV. OTHER BUSINESS (AS PRESENTED): None

V. THE MEETING WAS ADJOURNED

NewsAnn Mische